
![]()
Program/ Cultural Arts + Exhibition
Concept/ Flexible Events Spaces
Materials/ Wood, Metal, Glass, Light
Location/ Grand Haven, Michigan
News/ Grand Haven Tribune
Built/ 2005
![]()
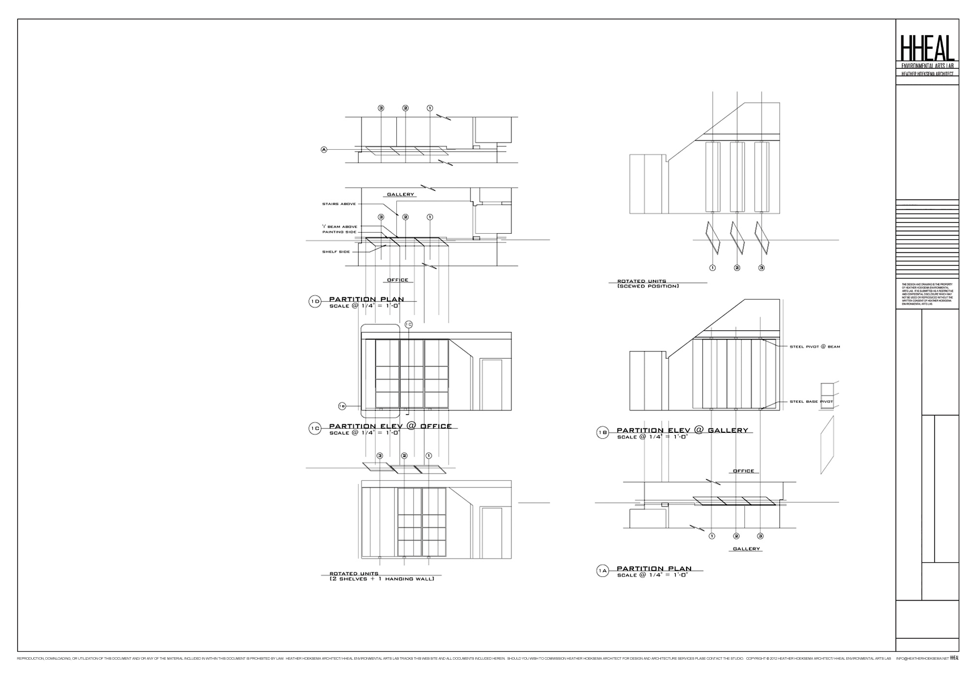
This fine art gallery redesign was inspired by an upcoming show with an aerial scenery artist. The main design feature is a rotating projection wall that accommodates scultpture on one side and paintings on the other. The wall bisects the space, separating the office area in the back from the gallery space in the front. Additional design features included new wall colors, lighting, and a grass field wall diffusing the natural light entering from the glass block clerestory.
• Passive air circulation control
• Historical building restoration
• Flexible use of space
• Kits of parts design installation
• Community art events
![]()











