
![]()
Program/ Healing Arts
Concept/ Interactive community space
Materials/ Wood, glass, light
Location/ Santa Monica, California
Built/ 2009
![]()
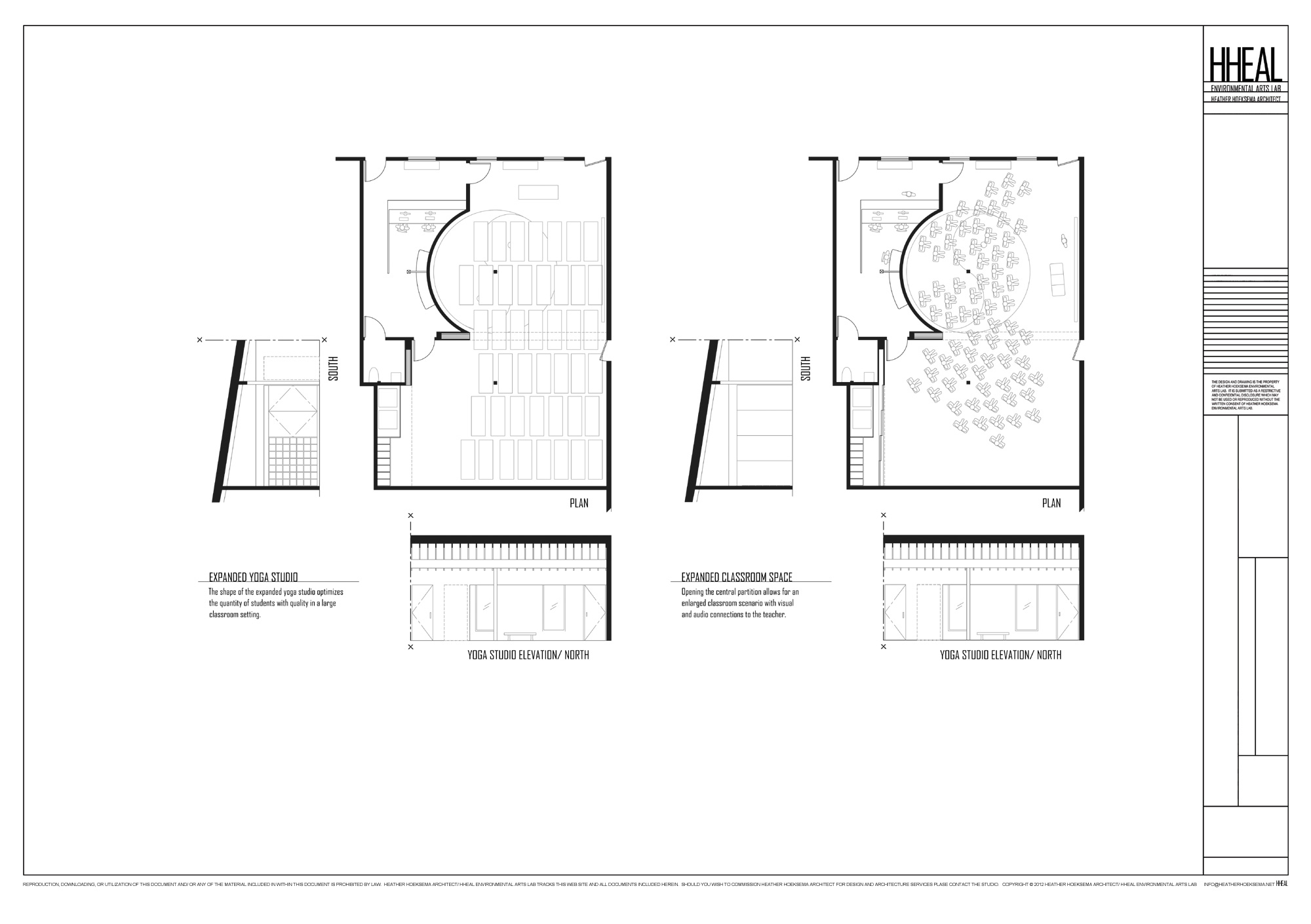
Integrating Art & Eastern Medicine, this clinic in Santa Monica commissioned HHEAL for design consultation for the reception area and to develop a schematic design concept for teaching rooms/ yoga spaces. HHEAL generated a concept that maintained the existing structure of the building and generated the artistic order of the design from Fibonacci's Sequence of Natural Order. This resulted in a fluid organic movement stimulating a subtle energy for yoga practice.
• Historical building upgrade
• Flexible use of space
• Integrating arts and healing
• Community interativity
![]()













